Description
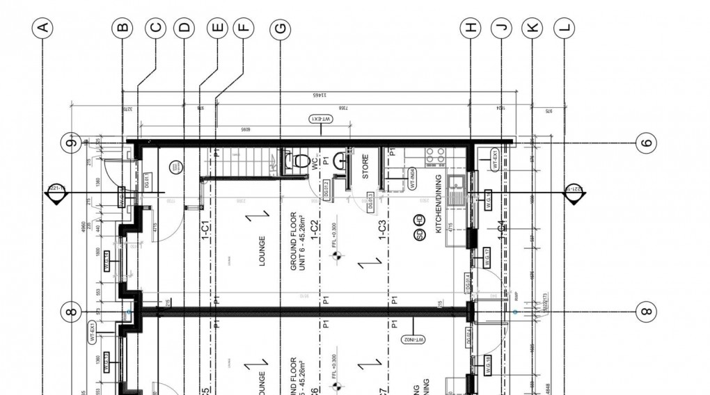
Newly Built 4-Bedroom Home with 2 En-suites – Modern, Stylish, and Ready to Move In! Step into this beautifully finished newly built 4-bedroom home, offering a perfect blend of comfort, space, and modern design. Ideal for families or professionals, this home features 2 en-suite bedrooms, making it perfect for multi-generational living or hosting guests with privacy. Highlights include: •4 spacious bedrooms, including 2 with private en-suites •3 modern bathrooms plus an additional guest WC •A bright and inviting open-plan kitchen, dining, and living area, ideal for entertaining or relaxing •Private garden – perfect for outdoor dining, children’s play, or quiet evenings in the fresh air Location: Located in a highly sought-after area, you’ll enjoy easy access to schools, shops, parks, hospitals, and excellent transport links to Isleworth station – everything you need is just moments away. Designed with quality and convenience in mind, this home offers high-end finishes, smart layout, and a warm, contemporary feel throughout. Situated in a sought-after location with easy access to schools, shops, parks, and transport links. This is your chance to own a stylish, move-in-ready home with all the space and features you need. ?? Contact us now to book a viewing – this opportunity won’t last long!
Floorplan