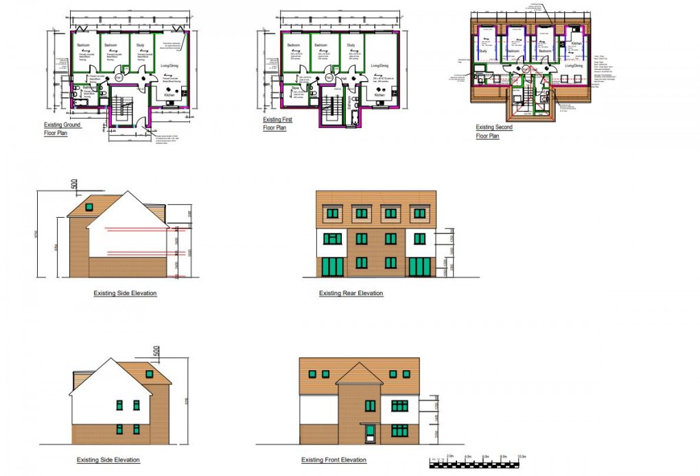
Description
Located in the quiet and sought-after cul-de-sac of St Peters Road, Uxbridge UB8, this modern property offers an exceptional opportunity for investors. Built in 2020, the home benefits from a contemporary design, has 5 years remaining on its structural warranty, providing added peace of mind for buyers. •Year Built: 2020 (with 5 years remaining structural warranty) •Composition: •Ground Floor: 3 Bed, 2 Bath •First Floor: 4 Bed, 2 Bath •Second Floor: 3 Bed, 2 Bath •Parking: Allocated + large driveway •Spec: High spec finish, part furnished •Potential Uses: Family lets, HMO, serviced accommodation (STPP) GDV: To estimate GDV, we assess the resale value of each flat individually, assuming they are sold off separately. Comparable Sale Values (Uxbridge UB8, built 2020+): •3-bed flats (modern): 375,000 – 425,000 •4-bed flats (rare, but estimated): 475,000 – 525,000 Estimated GDV: -Ground Floor (3-bed): ~ 400,000 -First Floor (4-bed): ~ 500,000 -Second Floor (3-bed): ~ 400,000 Total GDV= 400,000+ 500,000+400,000=1.3 Million Total GDV} = 400,000 + 500,000 + 400,000 = 1.3 million Total GDV = 400,000+ 500,000+400,000 =1.3 Million Estimated GDV: 1.25M –£1.35M, depending on finish and buyer demand. ERV: Assuming long-term lets, here is a breakdown: Uxbridge Rental Market (modern spec): 3-bed flats: 2,000 – 2,300/month 4-bed flats: 2,300 – 2,600/month Estimated ERV: -Ground Floor (3-bed): 2,150/month -First Floor (4-bed): 2,500/month -Second Floor (3-bed): 2,150/month Total ERV per annum= (2,150+2,500+2,150) ×12=82,800 pa {Total ERV per annum} = (2,150 + 2,500 + 2,150) × 12 = 82,800 p.a.} Total ERV per annum= (2,150+2,500+2,150) ×12= 82,800 pa. Estimated ERV: 80,000 – 85,000 per annum.
Floorplan
