Description
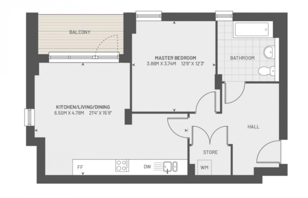
An exceptional luxury one-bedroom apartment set within the highly regarded Mortise House development, offering refined contemporary living in a prime Hayes location. This beautifully presented residence extends to approximately 657 sq ft and has been thoughtfully designed to combine style, comfort, and sophistication. The spacious open-plan reception room is bathed in natural light and provides an elegant setting for both relaxation and entertaining, finished with high-quality furnishings and a sleek modern aesthetic. The generously proportioned bedroom offers a tranquil sanctuary, complete with tasteful décor and excellent storage, while the stylish bathroom is finished to a high specification with modern fittings and a clean, luxurious finish. The apartment is offered fully furnished, featuring carefully selected contemporary pieces that enhance the home’s refined character—making it an ideal turn-key purchase for discerning buyers or investors seeking an immediate premium return. Perfectly positioned within walking distance of Hayes Town Centre, residents enjoy effortless access to a wide selection of boutiques, cafés, restaurants, and excellent transport connections. The modern development provides a secure and well-maintained living environment, reflecting the quality and prestige of the property itself. Key Features: - Luxury one-bedroom apartment - Approx. 657 sq ft of refined living space - Fully furnished to a high standard - Spacious and elegant reception room - Contemporary luxury bathroom - Secure modern development - Prime location close to Hayes Town Centre - Ideal for owner-occupiers or premium investors This is a rare opportunity to acquire a stylish, turn-key luxury apartment in a thriving and well-connected location. Viewings are highly recommended.
Floorplan