Description
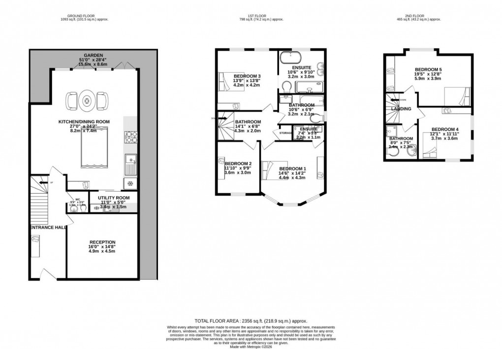
An exceptional seven-bedroom, four-bathroom residence offering substantial accommodation, strong rental potential, and an enviable West London location. This impressive property is arranged over multiple floors and provides generously proportioned living and sleeping space, making it ideally suited to large families, professional sharers, or investors seeking high-yield opportunities. The layout offers flexibility and scale, with well-sized bedrooms, multiple bathrooms, and excellent natural light throughout. To the rear, the property benefits from a private garden, ideal for outdoor entertaining or tenant amenity, while off-street parking adds further convenience—an increasingly valuable feature in this area. Positioned on the sought-after Foster Road, the property enjoys close proximity to Acton’s excellent transport links, including Underground and Overground services, providing fast and direct access into Central London. Local shops, cafés, green spaces, and amenities are all within easy reach. Offered to the market chain-free, this is a rare opportunity to acquire a substantial property in a high-demand rental area, with strong long-term capital growth prospects. Key Features - Seven bedrooms - Four bathrooms - Private rear garden - Off-street parking - Chain-free - Prime Acton location - Excellent transport links Early viewing is highly recommended.
Floorplan