Description
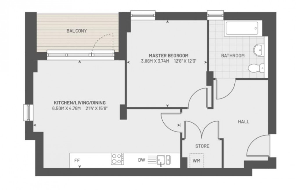
This well-presented one-bedroom apartment is located in the popular Mortise House development in Hayes, offering modern and comfortable living in a convenient location. The property measures approximately 657 sq ft, providing a generous amount of space for a one-bedroom home. The open-plan living and kitchen area is bright and spacious, with plenty of natural light and enough room for both relaxing and dining. We are seeking offers around the 375,000 GBP. The bedroom is well sized and includes good storage space. The bathroom is modern and finished to a high standard with contemporary fittings. The apartment is being sold fully furnished, making it ready to move into or rent out immediately. This can be particularly appealing for first-time buyers or investors. Mortise House is a secure and well-maintained development. The property is within walking distance of Hayes Town Centre, where you will find a range of shops, cafés, restaurants, and local amenities. Hayes Station (Elizabeth Line) is also nearby, providing quick and direct access to Central London and Heathrow Airport. Key Highlights: - Spacious 657 sq ft layout — larger than many comparable one-bedroom apartments - Fully furnished and ready to move in - Bright open-plan living space ideal for entertaining - High-specification modern bathroom - Excellent storage throughout - Secure and well-maintained development - Prime, well-connected location - Strong rental and investment potential
Floorplan