Description
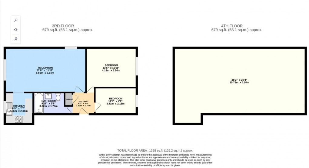
Turn-Key Ready 2-Bedroom Second Floor Apartment in Prime W13 A fantastic opportunity for first-time buyers, commuters, or investors-this beautifully presented, turn-key ready second floor apartment is located in the heart of West Ealing (W13). The home features a large double bedroom with fitted wardrobes and a second well-sized bedroom, ideal for guests or a home office. Enjoy a modern, fully fitted kitchen, a stylish family bathroom, and a spacious lounge diner, perfect for relaxing or entertaining. Additional benefits include loft space with potential to extend (STPP) and access to a communal garden, offering valuable indoor and outdoor space. Perfectly positioned within walking distance to West Ealing's Elizabeth Line, with excellent local schools, shops, and amenities nearby. Fast links to Central London and Heathrow, plus access to major transport routes, make this an ideal location. A smart, move-in-ready home in one of West London's most connected areas-early viewing highly recommended. Contact Stonebanks now to arrange a viewing!
Floorplan